
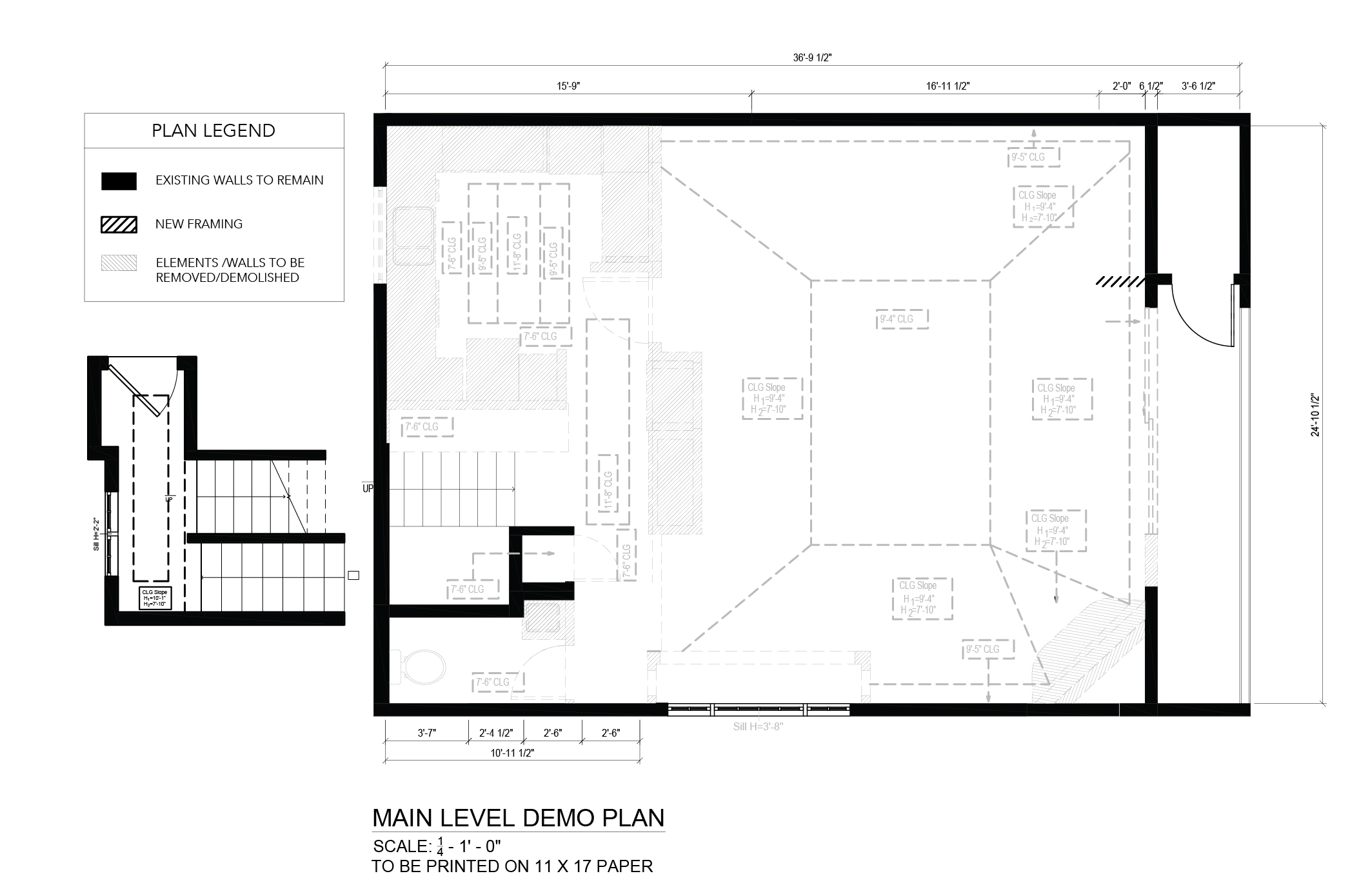
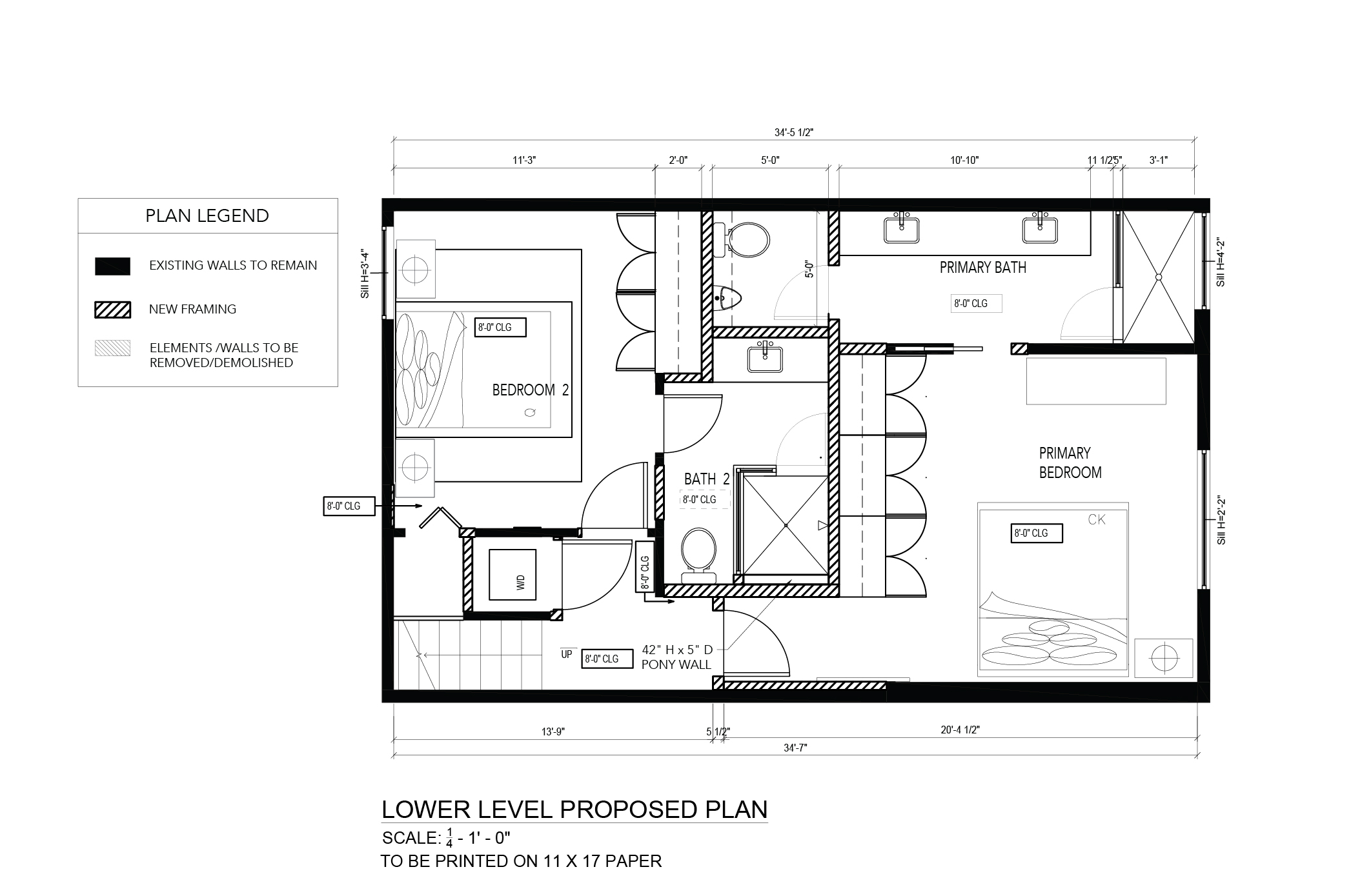
Beach Condominium
Multifamily Residential
This exclusive beachfront condominium is ideally situated just steps from the sand, offering unparalleled access to coastal living. We are thrilled to collaborate with a talented team of designers and architects, each dedicated to bringing this vision to life. The project is thoughtfully curated with luxurious coastal finishes, ensuring every detail enhances the overall ambiance. The result will be a truly exceptional vacation destination—where modern elegance meets the soothing beauty of the sea.
LOCATION
La Jolla, California
San Diego, CA
(619) 838-0808 phone
info@darmanbuilders.com
DARMAN Development & Construction
LIC # 987801 : LIC # 1001656
DARMAN Real Estate & Property Management
DRE # 01753422
Copyright © 2025 Darman Companies.
All rights reserved. Privacy Policy | Terms of Use












